產品分類
聯系我們
- 菏澤圣邦儀器儀表開發有限公司
地址:山東省菏澤市中華西路988號
聯系人:張經理
手機:15865099888
電話:0530-5788888 5299058
0530-5299008 5299006 5299066
傳真:0530-5299066
郵箱:[email protected]
網址:m.a745.cn
|
| HSFXQ 防爆在線分析小屋 |
|
| 產品介紹 |
|
| |
HSFXQ 防爆在線分析小屋
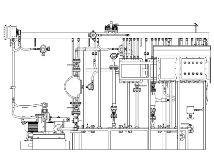
一、概述 防爆在線分析小屋是集成原油密度、含水、粘度、凝點、取樣等測量功能于一體的高精度自動化檢測設備,可實時在線監測原油關鍵數據,廣泛應用于油田開采、石油儲運、煉油化工等場合。設備采用先進傳感技術與智能化控制系統,具備測量精準、穩定性高、操作便捷等特點,有效提升原油品質檢測效率與準確性。
二、工作原理 防爆在線分析小屋的進樣口及出樣口安裝在輸油主管線上,經過過濾器過濾、循環泵強制循環,將油品導入循環系統中,通過分析小屋內儀表對油品進行密度、含水、粘度、凝點、取樣、溫度、壓力、差壓等參數進行檢測和采集,同時配備可燃氣體、硫化氫、氧含量氣體檢測儀以及通風模塊。系統通過智能控制系統調節循環泵可控制系統流速,并通過相關參數的采集對系統密度、含水、粘度、凝點、取樣、溫度、壓力、差壓、工作環境中可燃氣體、硫化氫氣體、氧含量等進行監測和報警。系統人際交互界面可顯示實時采集的數據,且采集的數據可進行實時曲線和歷史曲線查詢等功能,系統具備RS485通訊功能,可實時傳輸系統當前采集數據。
 工藝流程圖
三、型號及技術參數
| 型號 |
HSFXQ-1 |
HSFXQ-2 |
HSFXQ-3 |
主要 采集參數 |
密度、含水、粘度 |
密度、含水、粘度、取樣 |
密度、含水、粘度、凝點、取樣 |
| 設備尺寸 |
4000×2200×2660(mm) |
5000×3500×2660(mm) |
7000×3500×2660(mm) |
| 電源 |
380V 50Hz(三相四線制) |
380V 50Hz(三相四線制) |
380V 50Hz (三相四線制) |
| 功率 |
5kW |
7kW |
25kW |
| 壓力等級 |
≤4.0MPa,大于4.0MPa時另行設計生產 |
| 接液材質 |
304或316L不銹鋼 |
| 防爆標志 |
Ex db eb ib IIB T4 Gb |
| 防護等級 |
IP65 |
注:根據用戶需求選擇配置,如需采集更多參數,可另行設計生產。 |
|
|